Два спортивных клуба появятся в Канавине Нижнего Новгорода

Два спортивных клуба появятся в Канавине Нижнего Новгорода
© В городе N

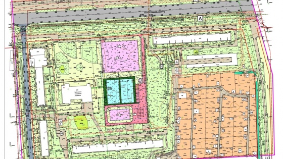
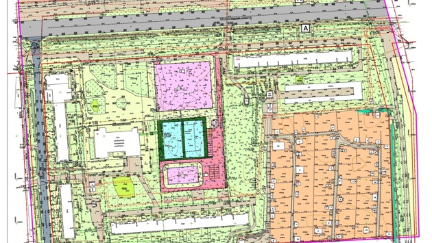
Два спортивных клуба появятся в Канавинском районе Нижнего Новгорода. Проект планировки территории опубликован на сайте администрации города.

Два объекта планируется возвести на пересечении Московского шоссе и улицы Тепличной на территории площадью 13,8 тысячи кв. м. Застройщиком выступает ООО «Альфа Групп», проект подготовила Мастерская генеральных планов.

Первый спортивный клуб расположится недалеко от дома№ 9 по улице Тепличной. Под здание выделят участок в 650 кв.м. Второй спортобъект с подземной парковкой появится на участке в 3 466 «квадратов». Оба здания будут одноэтажными, между ними планируется построить два футбольных поля и контрольно-пропускной пункт.

Рядом с обоими спортзалами оборудуют наземные парковки для легковушек на 124 места.

Отмечается, что до 4 марта документация проходит общественные обсуждения. Горожане могут направить свои замечания и предложения по электронной почте info@kan.admgor.nnov.ru или по адресу: улица Октябрьской Революции, дом 27.

Ранее мы писали о том, что научный центр и спортклуб могут появиться на Переходникова в Нижнем Новгороде